
NEWSお知らせ

上下式黒板の謎を解き明かせ! えっ黒板に種類ってあるんですか?Vol.3

特別教室にあります
音楽室や理科室など専門教科を学ぶ教室は【 特別教室 】に分類され、板面2枚が上下に動く【 上下式黒板&白板 】が多く設置されています(ちなみに通常授業を行い、普段過ごす教室は「普通教室 」と分類されています)。

特別教室と上下式黒板の共通点
皆様、この【特別教室】と【上下式黒板】には共通点があります。
それは、触れ合う機会が少ないという点です。特別教室に行くのは専門教科などの時間だけなので、上下式黒板を見ることも少なくなります。普通教室の黒板は子どもたちがそこで生活しているため親近感もありますが、 特別教室の上下式黒板は主に先生が扱い、子どもたちが触れることも稀です。

特別教室と上下式黒板に親しむことなく、学校時代を過ごした私たちは、上下式黒板をよく知らないままなのです。
上下式黒板はどうやって動くのか?
一般的には認知度の低い上下式黒板ですが、黒板業界では数多く設置します。そこで、メーカーサイドから謎の多い上下式黒板の仕組みを紹介いたします。※ 当社が設置しているバランス式上下式黒板の方法をお伝えしています。仕組やパーツはメーカーにより異なりますのでご理解願います
では、第一の疑問として、どこを持って上下稼働させるのか? という初歩的問題を考えたいと思います。

そのヒントは工場での製作にありました!
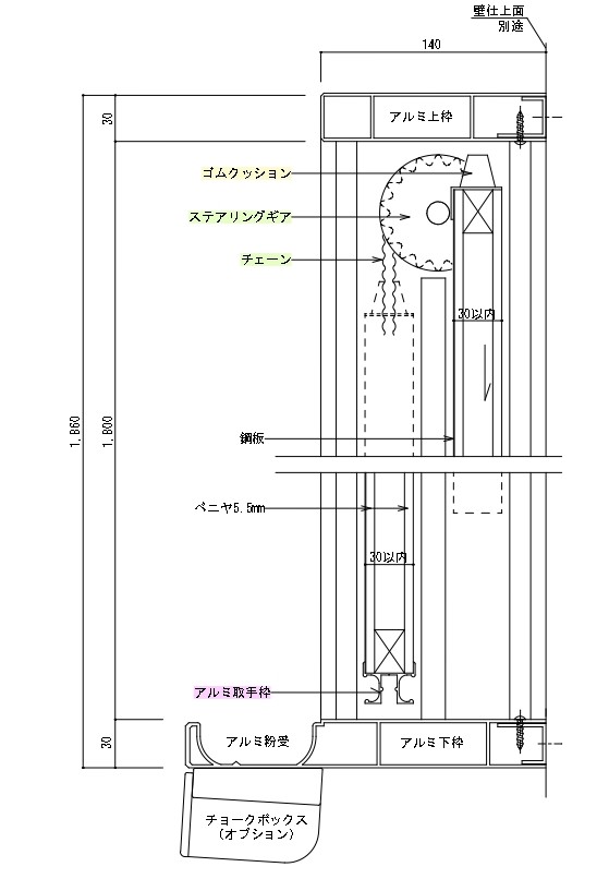
上下式黒板の製作時に取り付けるパーツの名前は【 取手枠 】。板面下部に取り付ける部材で、この取手枠を持って上下させます。

この部分を持って上下させます

自転車と同じ稼働方法
まずひとつ疑問が解消されました。次は上下する仕組みです。
それは施工過程で判明しました。なんと部品の中にチェーンがあります!自転車と同じように【 チェーンとギア 】で動くのです。
自転車は前輪と後輪にギア(歯車)があり、チェーンが前後ギアの凹凸と噛み合うことで動きます。同様に上下式黒板もアルミ枠上部のギアにチェーンを嚙み合わせることで2枚の板面を上下稼働させるのです。


ギアカバーで歯車部分は隠れています

チェーンの調整は繊細でバランスを取るのは難しいです


重量に繊細な黒板なので、板面に掲示物を貼るのは避けてほしいところです
上下式黒板を図解します
黒板には種類ごとに図面があります。この上下式黒板の図面を見ると細かなパーツで構成されていることが理解できます。ギアやチェーンで稼働することも図解され、先ほど紹介した取手枠もカーブの形状が断面図で示されています。


板面に付けることで、上下枠に当たらないようになっています
上下式黒板の種類
上下式黒板の謎が少しづつ解明されてきました。次は種類を紹介させていただきます。
設置数が多いのはW3600×H1800 (サイズ表記は㎜) の規格サイズです。高さが1800ということは、板面2枚が上下するため、1枚の板面の高さは900となります。


化学実験室です。教壇には水道が見えます

小中学校に多い多目的ルームに取り付けました

綺麗に五線譜が入っています

幅が4500もあるので、書ける面も広いです

正方形に近い感じですね
2連式上下黒板をご紹介します
2連式上下黒板と聞くとすぐにはイメージできないと思いますが、福岡市&福岡県ではよく採用されています。
≪2連式≫は枠の中央に方立(ほうだて)が入ることで 、左右に2つ板面が連なり、上下左右の4枚となります(※方立とは縦方向に設ける枠材で、隣接する範囲を区切り構造的に支える役割を持っています)。


チェーンは4本必要になります


板面1枚はW1800×H900となります

たっぷり幅がありますね
月予定などを入れることもできます
特別教室に設置されることの多い上下式黒板ですが、職員室にも多く採用されています。その際には罫線や文字を入れることがあります。

ブレーキ付の上下式黒板もあります
当社で多く施工する上下式黒板はブレーキなしで、部材を細かく調整することで対応していますが、大きなサイズではブレーキ付の上下式黒板を採用されることもあります。
ブレーキはロータリーダンパーとラックの組み合わせによる機工で、板面部分に取り付けられた歯車状のロータリーダンパーが枠下部のラックに噛み合うことでブレーキがかかるようになっています。親会社の Nichigaku カタログで紹介させていただきます。

上下式黒板への理解は深まりましたでしょうか?
謎めいた上下式黒板を少しでも分かっていただけたでしょうか?最後に基本的な上下式黒板の特徴を紹介させていただきます。
★板面が上下にあるので書くための広さが確保できる★上下に稼働するので、後ろの席からも見やすい★五線譜+無地、予定表+無地などの組み合わせも可能
ICT教育で板面に書き込むことが少なくなっていますが、黒板にチョークの字は目に優しいとも言われています。 身近に上下式黒板&白板がありましたら、仕組みなども見てもらえたら嬉しいです。







